BILDÜBERSICHT: ( Kleine Bilder anklicken, um zum großen Bild zu gelangen)

Modell

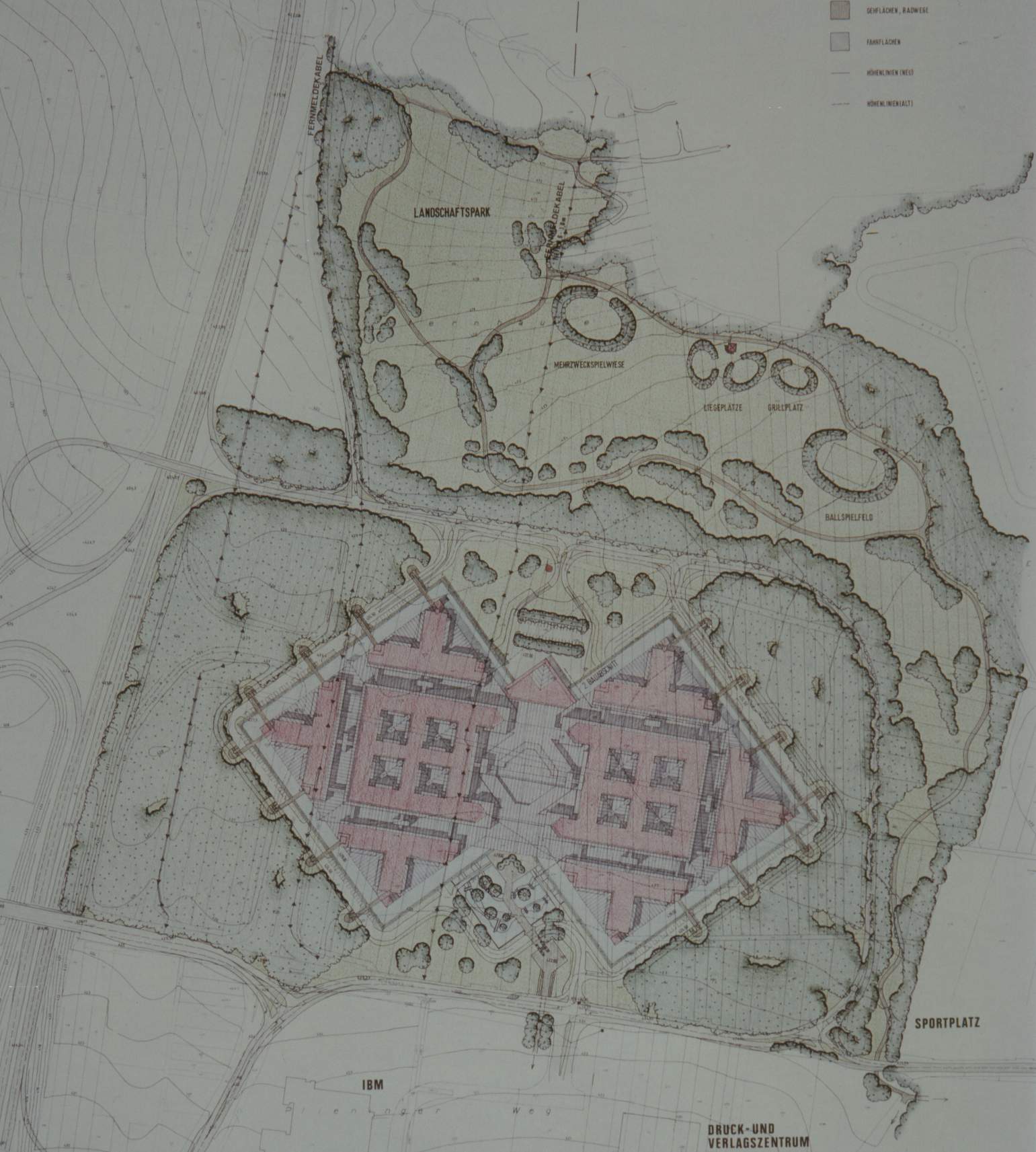
Lageplan

Erdgeschossebene

Ebene 1. Obergeschoss

Zurück